Сохранить фильтр
Торги №21000019490000000135

Лот 3712234 Нежилое помещение

Общая сводка
10.02.2025
Статус:

Открыт прием заявок
(обновлено 10.07.2025 04:47)

Регион:

Республика Татарстан

Тип торгов:

Аукцион

Приём заявок:

с 12.03.2025 03:00
до 13.03.2026 09:00

Проведение торгов:

11.02.2025 00:00

Электронная торговая площадка:

Доступно после регистрации

Организатор торгов:

Доступно после регистрации

Стоимость:
Текущая цена:

34 477.60

Шаг аукциона:

5%

Задаток:

379.25

Предмет торгов:
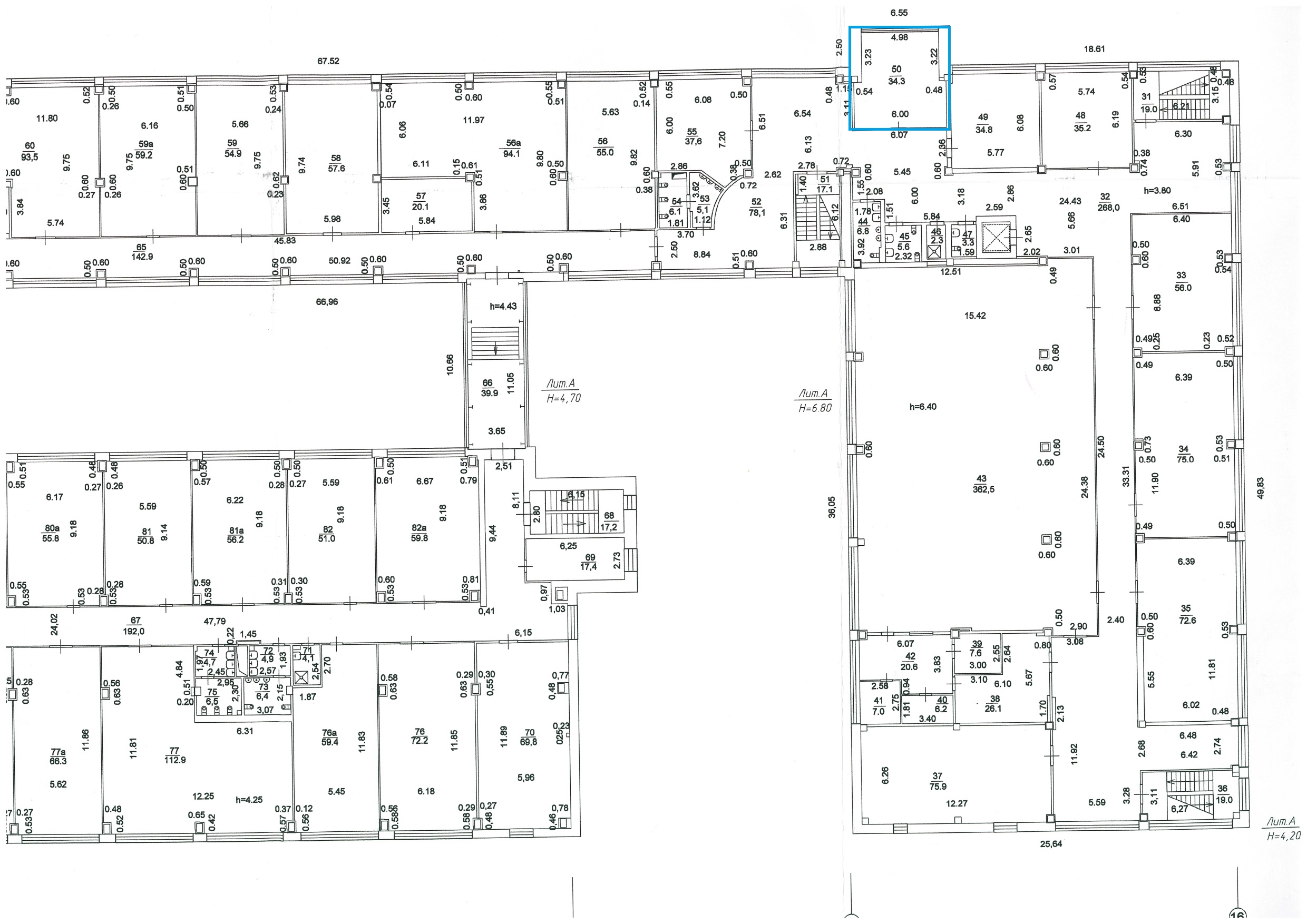
Нежилое помещение №45, 2этаж 9-этажного здания блока А, общей площадью – 56,8кв.м. 2 этаж 9-этажного здания, блок А (часть тех. помещения №45).Год постройки –2012г. Состояние - хорошее; фундамент - монолитные; наружные стены(материал) - навесные панели с кирпичными вставками с отделкой из композитных панелей "Алюкабонд", цоколь облицован керамогранитным плитами; перегородки – керамический кирпич, гипсокартон, остекление; пол-плитка; отделка потолков - подвесные, гипсокартон; вид отопления - центральное; система вентиляции и кондиционирования -центральная; системы электро-, тепло-, водоснабжения и канализации имеются
Введите данные для оплаты
Предмет покупки:
Услуга покупки лота профессиональным брокером. Лот #3712234
После оплаты, в течение рабочего дня с вами свяжется менеджер, чтобы запросить данные для участия в торгах.

Внимание!
Независимо от результата участия в торгах, возврат денежных средств за услугу не производится.
Заинтересовал лот? Профессиональный брокер купит лот за вас!
4990 руб Участие в торгах
1034 руб. Комиссия в случае победы
Участие профессионального брокера по агентскому договору
Юридическая помощь перед покупкой имущества.
Гарантия сделки по ФЗ №127 и ФЗ №229
Подписаться на телеграмм канал


Фото объекта
Торги №1494172 Лот №3712234 Нежилое помещение - торги по банкротству 1
Торги №1494172 Лот №3712234 Нежилое помещение - торги по банкротству 2
Торги №1494172 Лот №3712234 Нежилое помещение - торги по банкротству 3
Торги №1494172 Лот №3712234 Нежилое помещение - торги по банкротству 4
Торги №1494172 Лот №3712234 Нежилое помещение - торги по банкротству 5
Торги №1494172 Лот №3712234 Нежилое помещение - торги по банкротству 6
Торги №1494172 Лот №3712234 Нежилое помещение - торги по банкротству 7
Торги №1494172 Лот №3712234 Нежилое помещение - торги по банкротству 8
Торги №1494172 Лот №3712234 Нежилое помещение - торги по банкротству 9
Информация о собственнике
Адрес собственника:

420074, РЕСПУБЛИКА ТАТАРСТАН (ТАТАРСТАН), Г КАЗАНЬ, УЛ ПЕТЕРБУРГСКАЯ, Д. 52

ИНН:

1655191213

ОГРН:

1101690018760

Суд

Нет данных

Регион

Республика Татарстан

Организатор торгов
Email:

Gal.Hasanova@tatar.ru

ИНН

1655191213

ОГРН

1101690018760

Адрес

420074, РЕСПУБЛИКА ТАТАРСТАН (ТАТАРСТАН), Г КАЗАНЬ, УЛ ПЕТЕРБУРГСКАЯ, Д. 52

Контактное лицо

Хасанова Галия Ильдусовна

Телефон:

+7 ((84) 3)235-18-98