Сохранить фильтр
Недвижимость на торгах в Ставропольском крае - 147 активных лотов
Фильтровать по:
Активные торги и аукционы: 147
Сортировать:
Описание:
право на заключение договора аренды земельного участка земельный участок из категории земель «земли населенных пунктов», муниципальная собственность, по адресу: край Ставропольский, г. Буденновск, пр. Менделеева, мкр. 7/1, (далее – земельный участок), с кадастровым номером 26:21:020323:140, площ
Описание:
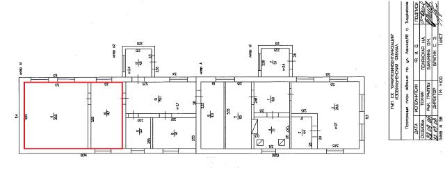
Объект аренды, площадь 51,20 кв. м., номер на поэтажном плане 1 этажа: 15-17, 22-24, адрес (местонахождение) объекта: 356170, Ставропольский край, Труновский р-н, Донское с, Ленина ул, дом № 4
Описание:
Объект аренды, площадь 20,1 кв. м., номер на поэтажном плане 2 этажа: 63 адрес (местонахождение) объекта: 356300, Ставропольский край, Александровский р-н, Александровское с, Блинова ул, дом № 98
Описание:
Объект аренды, площадь 18,2 кв. м., номер на поэтажном плане 2 этажа: 53, адрес (местонахождение) объекта: 356170, Ставропольский край, Труновский р-н, с. Донское, ул. Ленина, дом № 4
Описание:
Объект аренды, площадь 16,00 кв. м., номер на поэтажном плане 1 этажа: 7-8, адрес (местонахождение) объекта: 356101, Ставропольский край, Изобильненский р-н, Новотроицкая ст-ца, Ленина ул, дом № 193
Описание:
Объект аренды, площадь 25,00 кв. м., номер на поэтажном плане: 1-го этажа 5-7, адрес (местонахождение) объекта: 357350, Ставропольский край, Предгорный р-н, Ессентукская ст-ца, Этокская ул, 99а
Описание:
Объект аренды, площадь 42,3 кв. м., номер на поэтажном плане: 38,39,41,93,94, адрес (местонахождение) объекта: 357910, Ставропольский край, Советский р-н, г. Зеленокумск, ул. Мира, 11, в литере А пом. №3-16, 18-23, 32,33, 38, 39, 41, 46-48, 54, 90-95, 98-100
Описание:
Объект аренды, площадь 38,8 кв. м., номер на поэтажном плане 2 этажа: 32-34, адрес (местонахождение) объекта: 356170, Ставропольский край, Труновский р-н, Донское с, Ленина ул, дом № 4
Описание:
Объект аренды, площадь 34,3 кв. м., номер на поэтажном плане: 46-48, адрес (местонахождение) объекта: 357910, Ставропольский край, Советский р-н, г. Зеленокумск, ул. Мира, 11, в литере А пом. №3-16, 18-23, 32,33, 38, 39, 41, 46-48, 54, 90-95, 98-100
Описание:
Объект аренды, площадь 6,00 кв. м., номер на поэтажном плане 1 этажа: часть помещения 18, адрес (местонахождение) объекта: Ставропольский край, г. Ставрополь, ул. Доваторцев, д. 11
Описание:
Объект аренды, площадь 14,6 кв. м., номер на поэтажном плане: 1-го этажа 3, адрес (местонахождение) объекта: Российская Федерация, Ставропольский край, муниципальный округ Степновский, село Степное, улица Мира, здание 92
Описание:
Объект аренды, площадь 14,9 кв. м., номер на поэтажном плане 2 этажа: 57-60 адрес (местонахождение) объекта: 356300, Ставропольский край, Александровский р-н, Александровское с, Блинова ул, дом № 98
Описание:
Объект аренды, площадь 27,6 кв. м., номер на поэтажном плане: 1-го этажа 7-8, адрес (местонахождение) объекта: Российская Федерация, Ставропольский край, муниципальный округ Степновский, село Степное, улица Мира, здание 92
Описание:
Объект аренды, площадь 28,0 кв. м., номер на поэтажном плане: 1-го этажа 5-6, адрес (местонахождение) объекта: Российская Федерация, Ставропольский край, муниципальный округ Степновский, село Степное, улица Мира, здание 92
Описание:
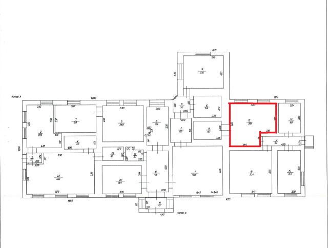
Объект аренды, площадь 195,7 кв. м., номер на поэтажном плане 3 этажа:98-100,106,107, 113-115, адрес (местонахождение) объекта: 357350, Ставропольский край, Предгорный район, станица Ессентукская, улица Гагарина, 99
Описание:
Объект аренды, площадь 44,6 кв. м., номер на поэтажном плане 1 этажа: 10-11, адрес (местонахождение) объекта: 356105, Ставропольский край, Изобильненский р-н, Тищенское с, Ленина ул, дом № 118
Описание:
Объект аренды, площадь 94,7 кв. м., номер на поэтажном плане 2 этажа: 38,39,39а, адрес (местонахождение) объекта: 356350, Ставропольский край, Новоселицкий р-н, Новоселицкое с, Школьная ул, дом № 22
Описание:
Объект аренды, площадь 28,1 кв. м., номер на поэтажном плане 1 этажа: 12, адрес (местонахождение) объекта: 356540, Ставропольский край, Туркменский р-н, Летняя Ставка с, Жижина ул, дом № 8
Описание:
Объект аренды, площадь 20,8 кв. м., номер на поэтажном плане 2 этажа: 52,77 адрес (местонахождение) объекта: 356300, Ставропольский край, Александровский р-н, Александровское с, Блинова ул, дом № 98
Описание:
Объект аренды, площадь 20,8 кв. м., номер на поэтажном плане 2 этажа: 52,77 адрес (местонахождение) объекта: 356300, Ставропольский край, Александровский р-н, Александровское с, Блинова ул, дом № 98











.jpg)
.jpg)
.jpg)
.jpg)
.jpg)































































































































































.jpg)

.jpg)




































